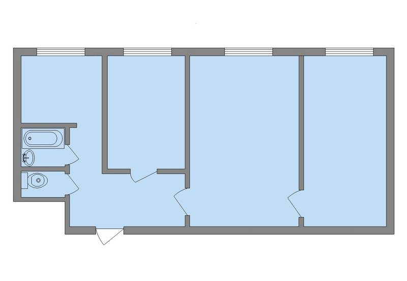
Не все многокомнатные квартиры можно считать просторными и удобными. Для комфортного проживания большой семьи комнаты должны быть независимыми и отделенными друг от друга. Главной особенностью планировки трехкомнатной квартиры является наличие прохода. Если площади недостаточно, то перегородки можно убрать и создать квартиру-студию. Новые дома в крупных городах, таких как Санкт-Петербург, Орел, Москва (их много в Московской области), также планируют строить по такой планировке. Стандартная планировка может быть разнообразной — открытой, смешанной, смежной. В зависимости от расположения окон их можно разделить на торцевые, поворотные и прямые.
Разнообразие планировок
существует несколько планировок п-3м, в зависимости от типа дома и его географического положения. Возможность размещения комнат отдельно зависит от года постройки и используемых материалов. Трехкомнатные панельные квартиры в хрущевках очень маленькие. Комнаты тесные и неудобно расположены. Тонкие стены и совмещенные санузлы не способствуют популярности этой планировки. Но в некоторых старых зданиях довольно просторные холлы, длинные коридоры и высокие потолки.


В сталинке
Этот тип дома впервые был построен в 1950-х годах. В то время это модифицированное кирпичное пятиэтажное здание считалось статусным жильем. Такие дома встречаются по всему Союзу и встречаются в таких городах, как Минск, Гомель, Орел, Харьков, Бобруйск и т д. Главными особенностями трехкомнатного дома сталинской эпохи были высокие потолки (3-4 метра), отдельный санузел и отдельные комнаты.

Размер квартиры зависит от количества этажей в здании. Обычно три этажа. Особенности включают большие подоконники и кладовые. Полы могут быть бетонными, деревянными или смешанными. Преимущества включают удобное расположение, в основном в центре крупных городов, и хорошую звукоизоляцию.


В хрущевке
Такие дома строились с конца 1950-х по 1980 год. В этот период они совершенствовались и перестраивались. Планировка ранних трехкомнатных домов была не очень удобной. Потолки были низкими, а комнаты небольшими. Стены пятиэтажных дощатых домов были плохо утеплены, а комнаты многоэтажных домов примыкали друг к другу и имели небольшую площадь.

В конце 70-х годов по специальному плану площадью 53 кв м началось активное строительство девятиэтажных зданий в стиле хрущевской эпохи. Строительство кирпичных и дощатых конструкций стен стало совершенствоваться, а высота потолков достигла 2,64 м. Поскольку была снята нагрузка внутренних перегородок, появилась возможность перепланировки прямоугольных помещений.


В брежневке
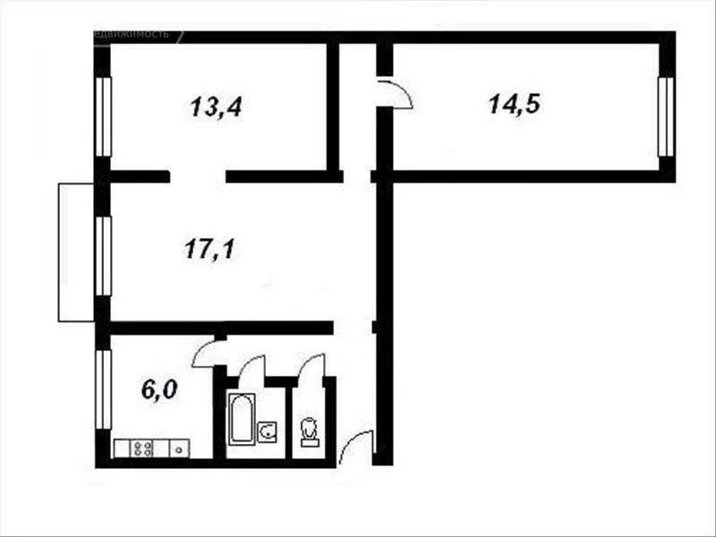
Трехкомнатная квартира средней площади считается проектом хрущевской достройки. Для таких квартир характерны большие окна, ниши и антресоли над коридорами или внутренними дверями. Площадь всех комнат составляет от 48 до 56,2 квадратных метров. К преимуществам такого типа зданий можно отнести хорошую гидроизоляцию санузлов, преимущественно кирпичных конструкций, просторные лоджии.

В некоторых брежневках улучшена планировка и проведен ремонт. Кухни в домах-«башнях» очень просторные и могут занимать до 10 квадратных метров. Узкие коридоры можно сделать функциональными с помощью встроенных шкафов и визуально расширить пространство. Если улучшить жилищные условия можно только путем реконструкции, все мероприятия необходимо согласовать. При наличии соответствующего разрешения старую брежневку можно превратить в высококлассный комфортабельный дом с несколькими комнатами.

Планируя снос стены в ванной, важно убедиться, что все сантехнические приборы остаются в местах, определенных архитектором на этапе чертежей. В противном случае высока вероятность затопления.

Планировка в современных строениях
планировка современных монолитных новостроек сильно отличается от планировки зданий в стиле «брежневка» или «хрущевка». Бурное развитие строительной отрасли отразилось на качестве строящихся объектов. Проходные комнаты встречаются редко, а внешняя изоляция угловых квартир хорошая. Во многих сериях домов, например, 515/9ш, 504, 511, 464, 467, II-18/12, достаточно свободного пространства для разделения различных функциональных зон.


Преимущества и недостатки
особенности планировки зависят от типа самого здания. Современные квартиры серий 100, 135, 103, 119, 1605, 602, 121, 137, ii-49 могут быть спроектированы как студия, полустудия с одной перегородкой или «вращающаяся» квартира. К преимуществам данной планировки можно отнести следующее:
- Высокий уровень комфорта. Во многих квартирах есть жилые комнаты, которые не примыкают к лифтам или мусоропроводам;
- Открытая планировка нового здания позволяет жильцам самостоятельно распределять свое пространство;
- Кухня удобно расположена, нет необходимости устанавливать бытовую технику и газовые плиты;
- Простая процедура перепланировки. Трехкомнатную квартиру можно легко переоборудовать в двухкомнатную без необходимости одобрения БТИ;
- Возможна двухуровневая планировка, панорамные окна, балкон-терраса.

Главным недостатком квартиры 65,4 в современном жилье является ее неудобная геометрия. Комнаты обычно имеют трапециевидную форму с углами, закругленными стенами с одной стороны, колоннами и другими особенностями. К недостаткам также можно отнести незаконченные и неудобные коридоры. Использование и планировка коридоров затруднены из-за большого количества дверей, ведущих в разные комнаты.

Расположение комнат
Современными постройками можно считать дома, построенные после 1992 года. Площадь трехкомнатной квартиры увеличилась до 60 квадратных метров. Просторные балконы охватывают несколько комнат, есть утепленные лоджии. Если квартира угловая, одну из комнат можно переоборудовать в коридор, тем самым увеличив ее площадь. Более практичны чешские, литовские или польские проекты. Коридор можно расширить за счет удобного расположения кладовой. При необходимости простую трехкомнатную квартиру можно переделать в хорошо спланированную четырехкомнатную.

Планировки новостроек в Левентицовке весьма разнообразны. Лучшим вариантом считаются свободные квартиры-студии. Они позволяют проявить фантазию в планировке и создать настоящее ощущение комфорта в просторных помещениях. Планировка бизнес-квартир в Бобруйске предусматривает удачное соотношение общей площади к размеру всех комнат.

Планировка помещений в башне Вулыха и аналогичная планировка серии ама II-68 (что означает «лодка») указывают на то, что помещения были полностью изолированы друг от друга. Отсутствие несущих стен позволило провести полную реконструкцию. Проблема такого типа строительства, как полагают, заключается в расхождении потолочных стыков.

Площадь квартиры
Трехкомнатные квартиры, предлагаемые в новостройках или чешских проектах, являются видом независимого, полностью функционального жилья для односемейных домов. Стандартная площадь составляет от 56,2 м2 до 68 м2. Иногда встречаются и квартиры площадью 75 м2. Такие квартиры находятся в жилом комплексе «Братск Патон» на Ростовской набережной. Дома меньшей площади оборудованы выделенными линиями, схемами и распределительными щитами. В подъезде установлен однофазный распределительный щит.

Площадь трехкомнатной квартиры зависит от типа здания, используемых материалов и количества этажей. Во всех проектах есть балконы или есть балконы и лоджии. Исключением может быть первый этаж. Некоторые современные здания оборудованы большой кухней в 14 квадратных метров и двумя санузлами, например, Vlasovsky Village Residence или комплекс Leventsovka.

Как выбрать и оценить планировку: советы и рекомендации специалистов
От правильного выбора планировки перед покупкой квартиры зависит благополучие и атмосфера дома. Это зависит от типа здания и его серии. Планировки комнат могут быть самых разных типов. Открытую студию можно получить путем трансформации. С помощью правильных перегородок можно получить универсальную, комфортную квартиру с большой площадью. Поквартирная проводка и часть электропроводки переносятся на одну стену. Распределительный щиток выводится в специальный закрытый отсек у входа. Тупые или острые углы планировки здания можно подчеркнуть с помощью подходящей мебели.

При оценке планировки в первую очередь учитывайте площадь приобретаемого вами дома. Желательно третий этаж. Затем обратите внимание на расположение, размер и форму комнат. К важным данным относится количество окон, наличие лоджий и балконов, их размер. Сначала определитесь с материалом несущих стен и толщиной перегородок. Кроме того, необходимо рассчитать расстояние от входа до лифта и мусоропровода.

Важно понимать, что свободная планировка не означает беспрепятственный демонтаж и монтаж стен. Все перегородки должны быть установлены строго в соответствии с планировкой БТИ.


Обустройство трехкомнатной квартиры
Для просторной квартиры подойдет практически любой дизайн. Широкое пространство — отличный выбор для воплощения любых смелых идей. При выборе подходящей планировки следует учитывать состав членов семьи. Межкомнатные двери должны быть подходящей ширины и удобными в использовании. Они должны открываться плавно и бесшумно. В современных новостройках часто используют раздвижные двери.

Столешница-остров или полуостров подойдет для просторной кухни. Также ее можно использовать как бар или столешницу. Подходит для небольшой гостиной с небольшой мебелью. При необходимости прихожую можно соединить с коридором.

В комнате должно быть достаточно розеток и выключателей для установки всех электроприборов. Они должны легко подключаться.


Заключение
При выборе дизайна трехкомнатной квартиры стоит учитывать, что один стиль может не подойти для обустройства комнат в дощатом или кирпичном доме. Общая площадь дома также имеет решающее значение. Минимализм подойдет для небольших и средних квартир, где можно перепланировать комнаты по своему вкусу. На больших площадях можно смело реализовывать самые оригинальные идеи, использовать нестандартные схемы и ориентироваться на фото.






